A new Royal Farms gas station and convenience store is planning for the corner of Route 9 and Nassau Commons Boulevard just west of Five Points outside Lewes.
The developer, Nassau Commons LLC, will seek approval of preliminary site plans at the Sussex County Planning & Zoning Commission’s meeting set for Wednesday, Nov. 19. The meeting begins at 3 p.m.
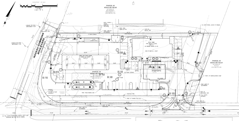
The plan calls for a 5,380-square-foot convenience store along with 16 fuel pumps under a canopy. Most of the current property is vacant, but a small office sits on the northeastern side. The site plan shows 44 parking space, including two ADA spaces.
The 1.8-acre property is already zoned C-1, general commercial, and does not require a rezoning. The site is directly across Nassau Commons Boulevard from back side of Redner’s Farm Fresh, which also has gas pumps along Route 9.
County documents say a traffic impact study was performed by project engineer Bowen Consulting Group in August 2024. The results of that study were not included in the packet for the planning & zoning meeting.
Entrance and exit facilities must conform to Delaware Department of Transportation standards and approved by the agency. The plans show a right-in, right-out entrance/exit along Route 9. A second entrance/exit is planned on Nassau Commons Boulevard.
The intersection of Route 9 and Nassau Commons Boulevard recently underwent major changes, as crews widened Route 9 in front of the Royal Farms and Redner’s property in preparation of a new traffic signal at Nassau Commons Boulevard. The light was installed earlier this fall, but it has not yet been activated.
The Route 9 end of Nassau Commons Boulevard also recently underwent a transformation, as the roadway was widened to meet state standards for eventual conversion to a state road. The road remains privately owned at this time, though.
Nick Roth is the news editor. He has been with the Cape Gazette since 2012, previously covering town beats in Milton and Lewes. In addition to serving on the editorial board and handling page layout, Nick is responsible for the weekly Delaware History in Photographs feature and enjoys writing stories about the Cape Region’s history. Prior to the Cape Gazette, Nick worked for the Delmarva Media Group, including the Delaware Wave, Delaware Coast Press and Salisbury Daily Times. He also contributed to The News Journal. Originally from Boyertown, Pa., Nick attended Shippensburg University in central Pennsylvania, graduating in 2007 with a bachelor’s degree in journalism. He’s won several MDDC awards during his career for both writing and photography. In his free time, he enjoys golfing, going to the beach with his family and cheering for Philadelphia sports teams.




















































